


VVS-ritningar för din villa.
VVS-projektering är skapande av ett gott innerklimat. Alltifrån temperatur, fukt, lukter och koncertration av koldioxid är moment som tas upp i VVS-ritningar.
Effektbehovsberäkningarna utfördes, uppskattning av luftflöden. Beroende på vad kunden har för krav (billigast, energieffektivast eller bäst för miljön för att nämna några) kan VVS ritningarna se helt olika ut.
Vid sjunkning av ute temperaturen jämfört med inomhustemperatur leder till en förlust i byggnadens värme. I vilken hastighet detta sker beror på en mängd olika element så som ytor och U-värden på klimatskalet, utetemperaturen och den önskade temperaturen inomhus.
Med hjälp av U-värde, kan vi ta fram hur mycket energi som flyer genom byggnadens klimatskal, för att senare implementera resultatet i VVS ritningarna Temperaturskillnaden beräknas med hjälp av den dimensionerade utetemperaturen (DUT) och innertemperaturen som önskat av kunden. Detta anses som en viktigt del i framtagande av VVS ritningar.
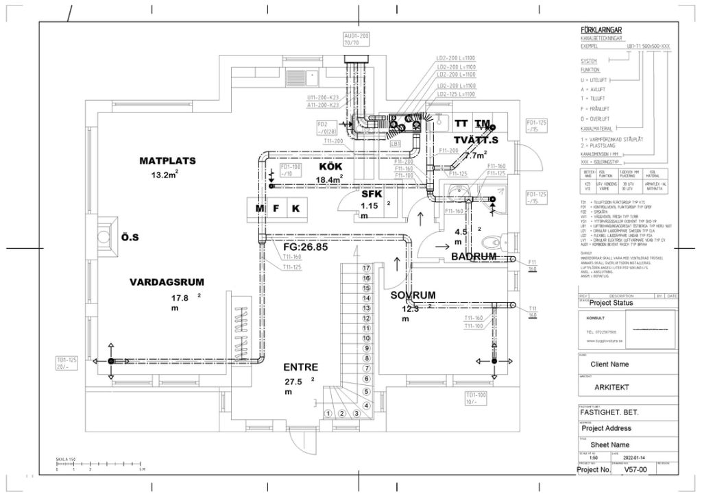
Luftflöde
Minsta luftflödet som krävs av Boverkets föreskrifter för bostäder, BBR, är 0,35 l/s per m2 golvarea (Boverket, PBL - Kunskapbanken). En grov uppskattning av hur många personer som vistas i varje rum görs. Om det råder övertryck i en byggnad riskerar man att varm och fuktig luft kommer i kontakt med byggnadens stomme och kan orsaka fuktskador (Ventilation.se) . Man kan även riskera att fukt kommer åt isoleringen om ett övertryck råder, därför är det bra att ha ett litet undertryck istället. Ventilationen dras i taket då får man dolda VVS ledning som ger en god estet. Luften måste kunna ta sig till frånluftsdonen, så om man har en rad kontor med bara tilluftsdon och ett frånluftsdon i korridoren utanför måste man se till att ha så kallade överluftsdon som normalt sätt installeras ovanför dörren så att luft alltid kan färdas fritt, även om dörren skulle vara stängd. I rum där det finns risk för att dåliga lukter sprids, t.ex. toaletter eller där fukt bildas, t.ex. dusch eller badrum är det bra att ha ett frånluftsdon.
Avlopp
Avloppsledningar dras i golvet som standard lösning, med uppgångar vid vattenkranar toaletter m.m. Avloppet ska ritas så rakt det går och böjar ska vara 45°. Att avloppet ligger under golvet gör att det är relativt enkelt att rita upp eftersom ingen hänsyn behöver tas till andra system. Avloppet ska även ritas in med ett fall, dvs. att alla ledningar ska luta neråt för att förhindra att vatten samlas vilket kan medföra dåliga lukter. Ledningarna ska luta med 100 mm per meter. Avloppssystem markeras med sitt system, oftast S för spillvatten. När man spolar en toalett uppstår ett undertryck i systemet som kan suga ut vattenlåset och göra så att dålig lukt sprider sig. Tryckförändringarna löses genom att installera luftningsledningar som mynnar ut över byggnadens yttertak, så att uteluft sugs in istället för att vattenlåset ska tömmas. Avloppsritningar är en viktigt del i VVS ritningarna, där brist på avloppsritningar kan leda till dåligt lukt när projektet är utfört.
Värme
Rör som går till radiatorer kommer vara synliga, därför är det viktigt att tänka på var man drar ner rören. Bra ställen är t.ex. i hörn eller bredvid fönster där de kan döljas av en gardin. Rören kan också målas (oftast vit) för att enklare smälta in. Radiatorer monteras under fönster för att förhindra kallras, det finns även bestämmelser för hur nära fönstret man kan installera radiatorn, avstånd mellan rör och radiatorer om rör dras under radiatorn. Det kallas för värmeritningar
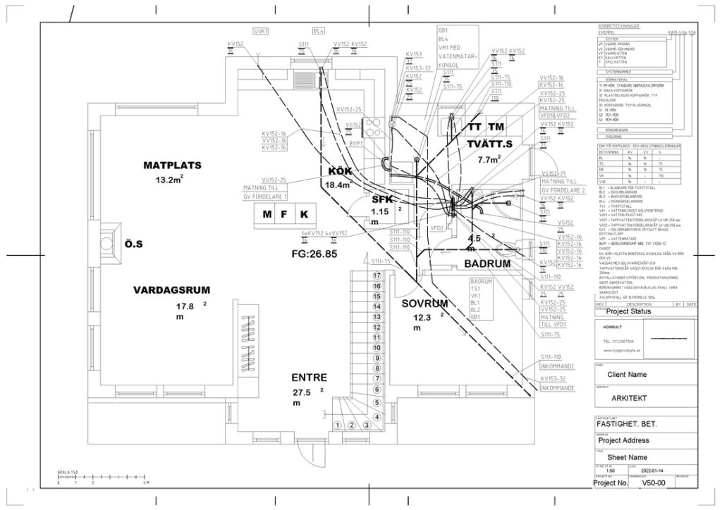
Täppvatten
Rör som dras till tappställen kommer vara synliga. Förkromade kopparrör används när rören är synliga. Om man har många tappställen nära varandra kan man sätta in en fördelare gömd i taket och därifrån dra PEX-rör till respektive tappställe. PEX-rör är mer böjliga och billigare än kopparrör, dessa rör kan man även dra inne i väggar för att på så sätt gömma ledningarna. Att en kallvattenledning och en varmvattenledning finns med i tappvattensystem är kanske självklart. Men man ritar även in en tredje ledning som kallas för varmvattencirkulationsledning. Denna ledning dras aldrig fram till tappställena, utan finns där för att varmvattnet ska kunna cirkulera. Där VVCledningen och VV-ledningen kopplas ihop sätter man en avstägningsventil, i bilden benämnd RV1-15. Om varmvattnet står stilla kyls det ned och risken för legionellabakterier ökar (Boverket, Har du legionella i dina vattenledningar). Minsta temperatur vid tappställe ska vara 50°C för Figur 4. VVC-lednings med avstägningsventil. Mått för installation av radiator. Alla mått angiva i mm. 7 att döda bakterierna, men under 65°C för att förhindra skållning. Viktigt är också att hålla kallvattnet kallt och se till att det inte värms upp oavsiktligt då bakterierna kan börja växa redan vid 20°C vatten. VVS ritningar måste innehålla en lösning för hur täppvatten ska hanteras, resultatet blir att entreprenören kan dra VVS ledningar på rätt plats.
Hur Vi jobbar
Projekteringen sker med relevanta program så som AutoCAD och MagiCAD, ritningar som dras upp har flera beteckningar så som Systemhandlingar, VVS ritningar osv. Avloppet brukar ritas först, dvs. avloppsritningen görs då inga beräkningar behövdes göras innan. Nästa steg är att ta reda på hur mycket värme som måste tillföras till varje rum för att upprätthålla innetemperaturen. Detta görs med hjälp av en Excell-mall. U-värden, areor, temperaturer och andra faktorer fördes in för att få fram varje rums värmebehov. Då kan värmesystemet ritas upp, radiatorer med inställd effekt ritades in och rör dras fram. Värmesystemet dras även upp till våning 2 vid tvåvåningshus, senare kopplas in i en värmeväxlare där även fjärrvärmen är inkopplad. Värmesystemet dras även fram till fläkt aggregatet där det kopplas in en shunt för att hjälpa till med uppvärmning av tilluften. Härnäst att rita upp var tappvatten. Kallvatten dras från våning 1 in till fläktrummet där en vattenmätare installerades så att kommunen kan hålla koll på hur mycket vatten byggnaden använder. Via värmeväxlare dras rör ned till våning 1 och vidare till tappställen, dvs. kranar, dusch, toalett osv. För att kunna rita ventilationssystemet måste luftflödena för varje rum bestämmas. Till- och frånluftsdon sätts in först för att sedan dra kanaler. Man ritar en plan i taget, sedan dras alla kanaler upp till fläktrummet och kopplades in i aggregatet. Dimensionering av alla system gjordes med hjälp av funktioner i MagiCAD. MagiCAD räknade ut flödet (vattenflöde för tappvatten/värme och luftflöde för ventilationen). För ventilationen har MagiCAD en funktion för att se hur mycket ljud som alla till- och frånluftsdon ger ifrån sig. Efter alla ritningar ritas upp, kan de textas. Med detta menas att alla rör, kanaler, don osv.ska markeras med vad det är för något. Programmet är jätte viktigt för att klartgöra alla beräkningar och omvandla de till VVS-ritningar.