


Bygglovsritningar för dig - vad du behöver veta
Att bygga sitt drömhus är en av de största investeringarna man kan göra. Men det är också en process som kan vara mycket komplicerad och tidskrävande, särskilt när det gäller att ansöka om bygglov. Bygglovsritningar är en av de viktigaste delarna i byggprocessen och kan ha stor inverkan på hur smidigt byggprojektet går. I denna artikel kommer vi att diskutera allt du behöver veta om bygglovsritningar för bostäder, från vad de är till hur man skapar dem och vad de kostar.
Vad är bygglovsritningar?
Bygglovsritningar är ritningar och dokument som behövs för att ansöka om bygglov. Dessa ritningar och dokument beskriver detaljerat hur byggnaden kommer att se ut och fungera, inklusive dimensioner, material, placering och annan relevant information. Bygglovsritningar krävs för att bevisa att byggnaden uppfyller alla lokala och nationella byggnadsregler.
Vilka ritningar ingår i bygglovsritningar?
Det finns flera ritningar som ingår i en komplett uppsättning bygglovsritningar. Nedan är en lista över några av de viktigaste ritningarna som krävs för en bygglovsansökan:
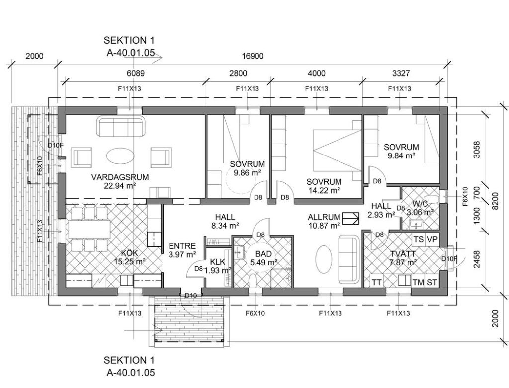
1. Planritning Planritning visar hur byggnaden kommer att se ut ovanifrån. Planritningen visar rummen i byggnaden, hur de är anslutna och hur stora dem är. Planritningen är mycket viktig för att fastställa hur byggnaden kommer att användas och om den uppfyller lokala byggregler.2. FasadritningarFasadritningar visar hur byggnaden kommer att se ut från utsidan. Fasadritningar visar fönster, dörrar, tak, takfot och andra exteriördetaljer. Fasadritningar är viktiga eftersom de visar byggnadens proportioner och hur den passar in i omgivningen.
3. Sektionsritningar Sektionsritningar visar hur byggnaden ser ut från insidan när man tittar på tvärsnittet. Dessa ritningar visar hur byggnadens våningar är anslutna och hur taket är konstruerat. Sektionsritningar är viktiga för att bestämma byggnadens strukturella integritet.
4. Situationsplan


Vilka material används vid bygglovsritningar?
Det är viktigt att materialvalen i bygglovsritningarna stämmer överens med de faktiska materialen som kommer att användas i byggnationen. Materialvalen ska alltså vara realistiska och genomförbara. Materialvalen ska också tas med i ritningarna så att kommunen kan bedöma om de är godkända enligt gällande byggnormer. Vanliga material som används vid bygglovsritningar inkluderar trä, betong, stål och glas. Det kan också vara aktuellt att använda andra material, beroende på vilken typ av byggnad det gäller och vilka krav som ställs på den. I vissa fall kan det även vara aktuellt att använda ekologiska och hållbara material, vilket kan behöva specificeras i ritningarna.
Hur får man tag på bygglovsritningar?
För att få tag på bygglovsritningar är det vanligt att anlita en arkitekt eller byggkonsult som kan ta fram ritningarna utifrån dina önskemål och behov. Det kan också finnas färdiga ritningar att köpa på marknaden, men det är viktigt att dessa ritningar anpassas efter just dina förutsättningar och önskemål. När du har ritningarna klara och godkända av kommunen är det dags att börja bygga. Det är viktigt att följa ritningarna noga för att byggnationen ska bli godkänd och för att undvika onödiga problem under byggnationen. Det kan också vara aktuellt att anlita en byggkonsult eller annan expert för att säkerställa att byggnationen genomförs på ett säkert och effektivt sätt.
Läs mer på Boverket Arkitektkopia och Svensk Byggtjänst.